ant
sig

RESTAURANTE ITXUNE - ORMAIZTEGI

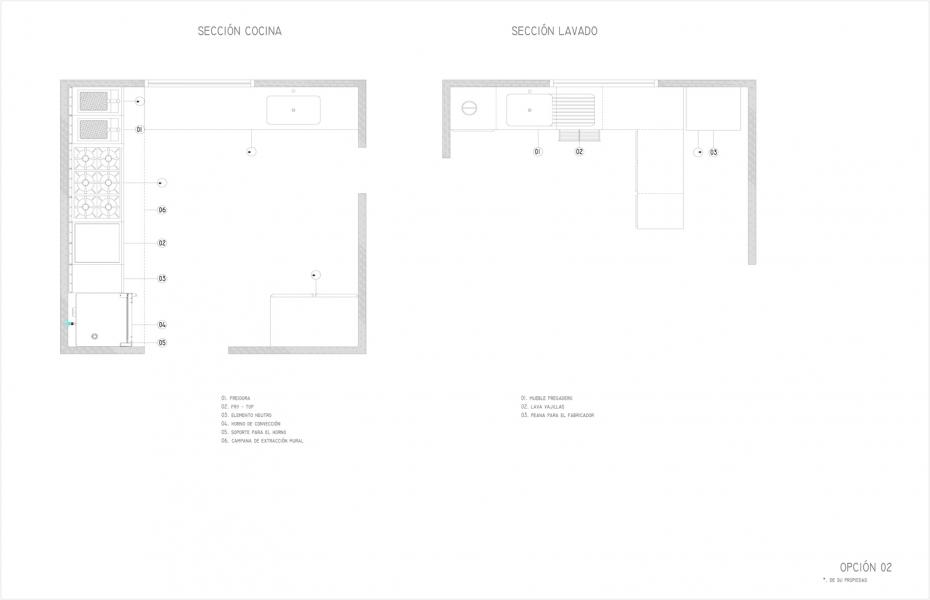
Plano planta de la cocina utilizando aparatos de su propiedad.

8 8 imágenes

1
2
3
4
5
6
7
8